DOPRACOWANY PROJEKT CZĘŚCI WSPÓLNYCH
DOPRACOWANY PROJEKT CZĘŚCI WSPÓLNYCH
Okna trzyszybowe
Okna trzyszybowe
Izolazcja akustyczna maty fonostop
Izolazcja akustyczna maty fonostop
Windy cichobieżne
Windy cichobieżne
wideodomofony
widedomofony
ogródki na parterze
ogródki na parterze

Nowe mieszkania w budynkach L, M już w sprzedaży!
Termin realizacji - I kwartał 2023 r.

Osiedle 4 Pory Roku
w realizacji

 

TWORZYMY OSIEDLE, KTÓRE O KAŻDEJ PORZE ROKU MA CIESZYĆ SWOICH MIESZKAŃCÓW

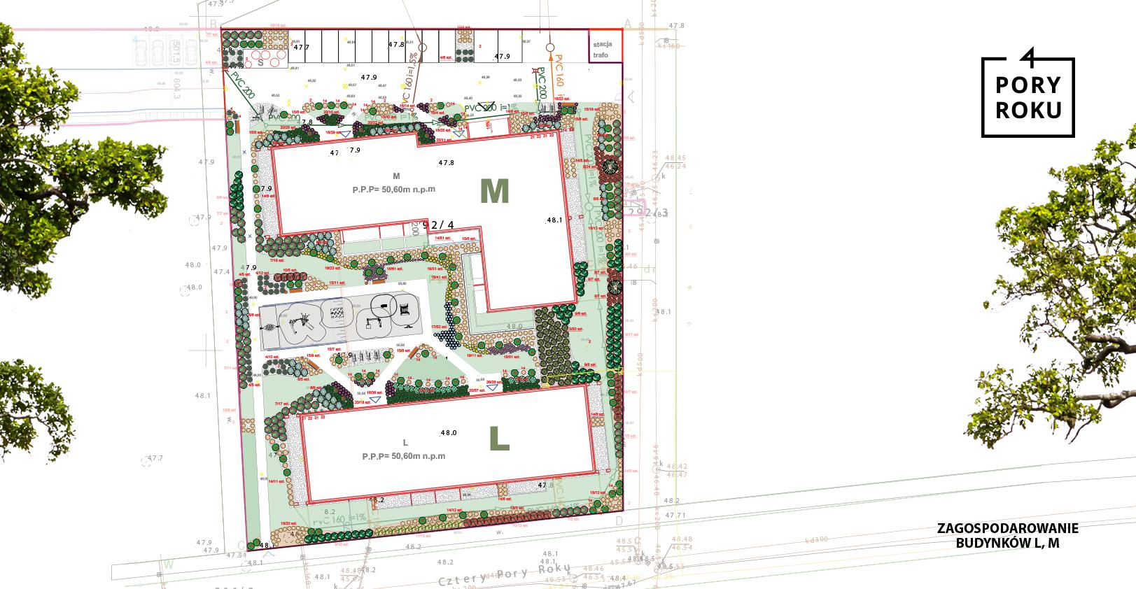
Osiedle 4 Pory Roku to wyjątkowy projekt na skalę Torunia gdzie oprócz dopracowania tak charakterystycznych dla nas elementów jak architektura, funkcjonalne rozkłady mieszkań, duże przeszklenia, dodaliśmy nowy pomysł na zagospodarowanie terenu. W ramach zagospodarowania terenu przewidzieliśmy zieleń, która zdominuje przestrzeń osiedla. Znaczące nakłady na jej realizację i dodatkowy nadzór nad nią, mają zagwarantować zgodność projektu z ostatecznym wykonaniem.

O każdej porze roku odpowiednie partie roślinności, rozwiną swoją paletę kolorów. Byliny, jako podstawowe elementy, zaprojektowane w formie rzek przepływających przez kolejne etapy inwestycji, staną się ich łącznikiem, tworząc spójną całość.

 

 

PRZYJAZNE I SPOKOJNE OTOCZENIE OSIEDLA

 

W celu zapewnienia maksimum bezpieczeństwa przewidziano ogrodzenie posesji oraz monitoring. Zmotoryzowanym mieszkańcom wygodę zagwarantują miejsca postojowe i komórki lokatorskie w podziemnej hali garażowej. Dodatkowo w kondygnacji podziemnej znajdować się będą bardzo duże pomieszczenia wózkowni / rowerowni. Budynki zostały wyposażone w każdej z klatek w windy od poziomu parkingu podziemnego.

Osiedle 4 Pory Roku

Termin realizacji budynków F, G, H - I kwartał 2022 r.

Termin realizacji budynków L, M - I kwartał 2023 r.

Osiedle 4 Pory Roku

 

Kredyt mieszkaniowy - Oferta specjalna


Agnieszka Bukowska

telefon: +48 797 702 837
mail: agnieszka [dot] bukowskaatnicolausbank [dot] pl

Skontaktuj się z nami

Zapraszamy do kontaktu z naszymi doradcami mieszkaniowymi w biurach sprzedaży Apro Investment w Toruniu i Bydgoszczy.

Apro Investment Sp. z o.o. wpisana do rejestru przedsiębiorców prowadzonego przez Sąd Rejonowy w Toruniu VII Wydział Gospodarczy Krajowego Rejestru Sądowego pod numerem 0000041205,
NIP: 554-02-39-546, kapitał zakładowy 6.700.000,00 złotych.

Biuro w Toruniu

Apro Investment Sp. z o.o.
ul. Lubicka 53
87-100 Toruń
mieszkania [at] apro.com.pl

Napisz wiadomość lub zostaw numer telefonu, a skontaktujemy się z Tobą.

Administratorem danych osobowych jest APRO Investment Sp. z o.o. Więcej informacji o przetwarzaniu danych znajdziesz tutaj.